Appartamento in vendita a Milano (MI) zona Villa San Giovanni

Rif: Monza 319
Condividi Linkedin Whatsapp Stampa
€ 245.000
Appartamento
60 Mq
2 Vani
Classe energetica F
1 camera
1 bagno
Ascensore
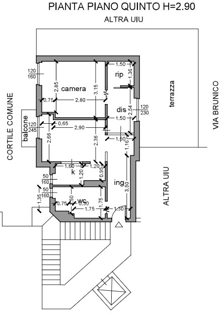
Villa San Giovanni: In vendita bilocale con Terrazzo posto al quinto piano di uno stabile civile. L'appartamento si presenta in discrete condizioni interne, ha una doppia esposizione ed un grande terrazzo. Dall'ingresso attraverso un corridoio si accede al soggiorno con balconcino ed angolo cottura separato, al grande terrazzo, alla camera ed al ripostiglio/cabina armadio. Bagno finestrato. Il piano alto e la doppia esposizione garantiscono un ottimo riscontro d'aria e tanta luce. La camera affaccia sul cortile interno, il soggiorno sia sul cortile che sul terrazzo con vista sugli alberi del parcheggio di via Brunico. Metro sotto casa e tutti i servizi essenziali a portata di mano. L'appartamento è già abitabile, ma una ristrutturazione potrebbe aumentare di molto il suo potenziale!
___________________________________________________________________________________________________________________________________________________________________________________________________________________________________________________________________________________________________________________________________________________________________________________________________________________________________________________________________________________________________________________________________________________________________________________________________________________________________________________________________________________________________________________________________________________________________________________________________________________________________________________________________________________________________________________________________________________________________________________________________________________________________________________________________________________________________________________________________________________________________________________________________________________________________________________________________________________________________________________________________________________________________________________________________________________________________________________________________________________________________________________________________________________________________________________________________________________________________________________________________________________________________________________________________________________________________________________________________________________________________________________________________________________________________________________________________________________________________________________________________________________________________________________________________________________________________________________________________________________________________________________________________________________________________________________________________________________________________________________________________________________________________________________________________________________________________________________________________________________________________________________________________________________________________________________________________________________________________________________________________________________________________________________________________________________________________________________________________________________________________________________________________________________________________________________________________________________________________________________________________________________________________________________________________________________________________________________________________________________________________________________________________________________________________________________________________________________________________________________________________.

Dettaglio immobile

Contratto Vendita
Rif Monza 319
Prezzo € 245.000
Provincia Milano
Comune Milano
Zona Villa San Giovanni
Indirizzo Viale Monza 319
Superficie 60 mq
Vani 2
Camere 1
Bagni 1
Classe energetica F (DL 90/2013)
EPgl,nren 175 kwh/m2 anno
Piano 5 / 7
Riscaldamento centralizzato
Condizioni abitabile
Spese condominiali € 130
Anno di costruzione 1950
Arredato si
Ascensore si
Cantina 4 mq
Cucina angolo cottura
Balcone si
Terrazza si

Consistenze

Descrizione Superficie Sup. comm.
Principali
Immobile - 5° piano 50 Mq 50 Mqc
Terrazza - 5° piano 30 Mq 9 Mqc
Cantina - piano interrato 4 Mq 1 Mqc
Totale 60 Mqc

Video

Planimetrie

Richiedi maggiori informazioni

Autorizzazione al trattamento dei dati personali+
Dichiaro di aver letto l'informativa sulla privacy ed accetto le condizioni d'utilizzo del servizio.
Riempi il campo con il codice riportato nell'immagine*
Codice Captcha
Chiamaci Contattaci